
БУНКЕР-СКЛАД ВІД 5 ДО 120 КУБ.М (РЕТРА)
від 96 100 ₴
- Готово до відправки
- +380 (44) 333-65-96
АКЦІЯ НА БУНКЕРИ ДЛЯ ЩЕПИ РЕТРУ!!! БЕЗПЛАТНА АДРЕСНА ДОСТАВКА ПО УКРАЇН!!! ВИГОДНІ УСОВА ПОКУПКИ (УТТОЧНІТЬ)!!!
БУНКЕР-СКЛАД ДЛЯ ШОПИ (РЕТРА) ПОМІСТОМ — ВІД 5 ДО 120 КУБ.М. (ІШТАННІ ЗА ЗАБОРОДИ)
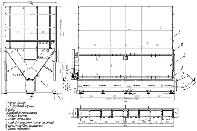
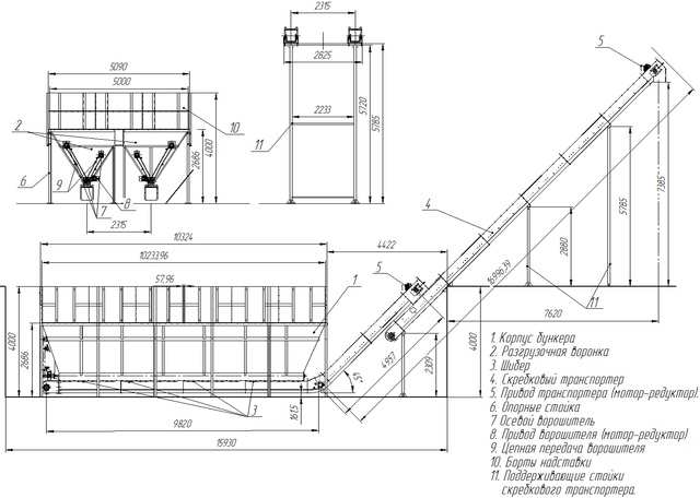
Бункер призначений для безперебійного та своєчасного подавання палива (пелети), відходи зернових та інших сипких матеріалів. Технологічний процес подавання відбувається в автоматичному режимі. Бункера виготовляються різних типорозмірів залежно від потреб замовника. У кожному з типорозмірів є можливість збільшувати обсяг бункера за допомогою спеціальних надставок, які встановлюються на основний бункер. Бункер склад зроблений у формі зрізаної піраміди та встановлюється на спеціально підготовлений рівну майданчик.

Основним складником частина бункера є корпус 1, виготовлений із листової сталі. Лійка витоку палива 2 розміщена на днищі бункера, де передбачене встановлення закривів (бивців) 3 для регулювання або припинення подавання палива. До нижньої частини воронки кріпиться скребковий транспортер 4. Привод скребкового транспортера здійснюється від окремого мотор-редуктора. Опорною частиною бункера є стійки 5. Для ефективного процесу витоку палива та його активації, у конструкції бункера-складу передбачене встановлення механічних змішувальних пристроїв осьового типу 6, розташованих у різних площинах. Приводрушників (мотор-редуктор) 7 обертає осьовий ворошувач, а також через зірочку ланцюгового передавання 8 обертає вали інших ворошників.
БУНКЕР-СКЛАД (РЕТРА) 120 КУБ.М. НА 2 ТРАНСПОРТЕРА (СКРЕБКОВИХ АБО ІНИХ З ЗАКАЗКИ)

На ланцюгові передачі встановлюються натяжні ролики. На воронках бункера-складу встановлені датчики наявності палива. Автоматична робота та захист обладнання забезпечується окремим блоком керування.
У КОМПЛЕКТ ПОСТАВКИ ВХОДИТЬ:
- Бункер у зборі з транспортером і осьовим ворошувачем;
- Мотор-редуктор;
- Блок пуско-захисту;
- Надставка (під час замовлення);
- Комплект кріпильних виробів;
- Експлуатаційна документація та ін.
Доставка ємностей для тріски РЕТРА по всієї Українці: Чорновці, Тернополь, Рівно, Харків, Житомир, Одеса, Запоріжжя, Вінниця, Львів, Луганськ, Донецьк, Житомир, Одеса, Херсон, Сумми, Кіровоград, Чернігв, Полтава, Миколая, Хмельницький, Київ, Івано-Франків, Днепрозор, Черкаси тощо.
| Основні атрибути | |
|---|---|
| Виробник | Ретра |
| Країна виробник | Україна |
| Види твердого палива | Тріска |
| Основні | |
| Вид пального | Тверде |
| Теплоносій | Вода |
| Матеріал теплообмінника | Сталь |
- Ціна: від 96 100 ₴











